Information
-
Type:Bofællesskab
Adresseoplysninger
7330 Brande
Kontaktoplysninger
-
Kontaktperson:Berit Larsen
-
Email:
Denne e-mail adresse bliver beskyttet mod spambots. Du skal have JavaScript aktiveret for at vise den. -
Telefon:21791159
Links
Del med dine venner på
Beskrivelse af bofællesskabet
Bofællesskabet Slugten er under udvikling i 7330 Brande. Læs mere om os på vores hjemmeside.
Herunder vores værdigrundlag.
Værdigrundlag
Bofællesskabet ”Slugten”
” alle kan noget, og sammen kan vi meget mere”
Fællesskab
Slugten er et moderne, rummeligt, mangfoldigt og trygt bofællesskab, hvor vi samles om en tro på ”at alle kan noget, og sammen kan vi meget mere”. Fællesskabet er med til at gøre vores liv lettere og bedre og må aldrig blive besværlig eller føles som tvang, men i stedet afspejle at vi er omsorgsfulde, respektfulde, aktive, lydhøre og tolerante. Fællesskabet bygger på 50+ dvs. et voksent bofællesskab, men hvor børn og børnebørn altid skal føle sig velkomne. Husdyr er også velkomne i Slugten.
Bæredygtighed
Bæredygtighed er vigtig for os. Uden at være fanatiske vil vi tilstræbe, at vores fysiske rammer og daglige gøremål belaster miljøet mindst muligt. Vi er ikke et økologisk bofællesskab, men snarere et fællesskab med en grøn bevidsthed, hvilket vi forsøger at praktisere i vores hverdag. Vi er opmærksomme på de 17 verdensmål og i vores hverdag tilstræber vi at fremme og imødekomme de FNs 17 verdensmål, hvor det er muligt – både i fælles- og individuelle aktiviteter.
Deltagelse
Drømmen om at bo et sted fyldt af liv, initiativ, entusiasme og humor bygger på deltagelse. Vores bofællesskab forudsætter viljen og lysten til at tage del i og påtage sig et ejerskab af de fælles forpligtelser og opgaver, der kræves for at fællesskabet fungerer og for at vores fælles rammer fremstår velholdte og attraktive. I Slugten deltager man fleksibelt i arrangementer, fællesspisning, arbejdsdage mm., som det passer ind i den enkeltes liv.
Demokrati
Demokrati er grundlaget for bofællesskabet Slugten. Beslutningerne omkring fællesskab og fællesarealer bliver truffet på demokratisk vis, beskrevet i vores vedtægter og skal respekteres herefter. Flertalsbeslutninger, som gælder for alle beboere, kan forekomme, herunder også beslutninger som indebærer økonomiske forpligtelser. Slugten drives af andelstankegangen med en valgt bestyrelse, der tager de daglige beslutninger efter mandat fra fællesskabet. Fællesskabet afholder 4 – 6 møder om året, hvor beslutninger af større betydning skal konsolideres. Som ny beboer optages man på en interesseliste og indstilles til bolig af bestyrelsen. Inden endelig indstilling mødes nye beboere med fællesskabet i Slugten.
Arbejdsgrupper
Slugten er et aktivt bofællesskab, med plads til aktiviteter af mange forskellige slags. For at få fællesskabet til at fungere rent praktisk har arbejdsgrupper, ansvaret for forskellige områder. Eks. på grupper: en køkken-gruppe, udsmyknings-gruppe, aktivitets-gruppe, have-gruppe, arrangements-gruppe, koncert-gruppe, værksteds-gruppe osv. Grupperne dannes løbende, som behovene opstår. Arbejdsgrupperne refererer til bestyrelsen, der igen refererer til fællesskabet.
Åbenhed
At bo så tæt, forudsætter åbenhed og nysgerrighed overfor nye og anderledes måder at gøre tingene på. Vi kan tale sammen og vi gør det, men vi respekterer også den enkeltes privatliv. Slugten er bygget og organiseret så den tilgodeser både fællesskabet og vores ret til og behov for et privatliv. Fællesskabet er en bærende del af Slugten og hvis man vil bo i Slugten er det en forudsætning at man byder til fællesskabet og bidrager aktivt.
Hverdagen
Et af samlingspunkterne er fællesspisningen, der både skal og kan aflaste familien og den enkelte i hverdagen og skaber et fælles fundament for et velfungerende nærmiljø. Det er gennem de daglige kontakter interessen for og kendskabet til hinanden opstår. Fællesspisning er en central aktivitet, der afpasses efter beboernes ønsker og behov. Vi tilstræber at spise sammen så tit som muligt.
Der udvikles et booking- og planlægningsredskab, så det fungerer let i hverdagen, hvor alle efter tur bidrager til madlavningen.
Aktiviteter og arrangementer
Fællesaktiviteter er en bærende og aktiv del af Slugten, hvor vi både orienterer os ind mod det interne fællesskab og ud mod det omgivende samfund.
Vi vil gerne have mange forskellige arrangementer og aktiviteter i Slugten. Fællesskabet styrkes ved deltagelse og arbejdet med aktiviteter og arrangementer. Vi ser ingen begrænsninger i aktiviteter og arrangementer, når blot de er til gavn for fællesskabet. Der udvikles et årshjul for tilbagevendende aktiviteter og arbejdsdage.
Vi byder gerne vores nærmiljø (naboer), men også resten af Brande ind til vores fælles aktiviteter, hvor det giver mening.
Vi er som bofællesskab også orienteret og aktive i aktiviteter og arrangementer, der sker i resten af Brande.
Fælles faciliteter
Vores fælles faciliteter er alles ansvar. Fælleshuset er tænkt som et “multifunktions hus” og danner rammen om fællesspisningen og andre fælles aktiviteter. Ud over fælleshuset har vi et fælles værksted, der er rammen om alle tænkelige kreative aktiviteter og den daglige vedligeholdelse. Udenomsarealer, carporte, ”vaskeri”, grønne områder, affaldssortering indgår også i fællesskabet, dog er ”egen have” en del af det private frirum.
Vi passer vores fælles faciliteter i fællesskab, derfor arrangeres der fællesarbejdsdage for at vedligeholde og udbygge disse faciliteter.
I forbindelse med fælleshuset er der to ”hotelværelser” som kan benyttes af vores besøgende. På sigt kan fælleseffekter som cykler, trailer, biler, værktøj, haveredskaber mm., indgå som en naturlig del i fællesskabet.
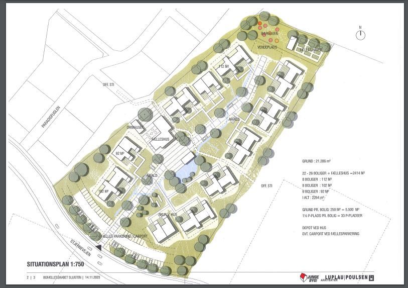
Historien om bofællesskabet
Fakta om bofællesskabet
Struktur
70+
92
110
Økonomi
Varme
El
Vand
Fælles faciliteter
-
Fælleshus
Gæsteværelse(r)
Kørestolsrampe
Græsarealer
Rekreative områder
Frugttræer
Bålplads
Køkkenhaver
Værksted(er)
Affaldssortering
Økologi
Private faciliteter
-
Egen vaskemaskine
Fællesspisning
-
Frekvens3-5 pr. uge
-
Pris pr. måltid (voksen)
-
Pris pr. måltid (barn)
-
Økologi
