Information
-
Type:Seniorbofællesskab
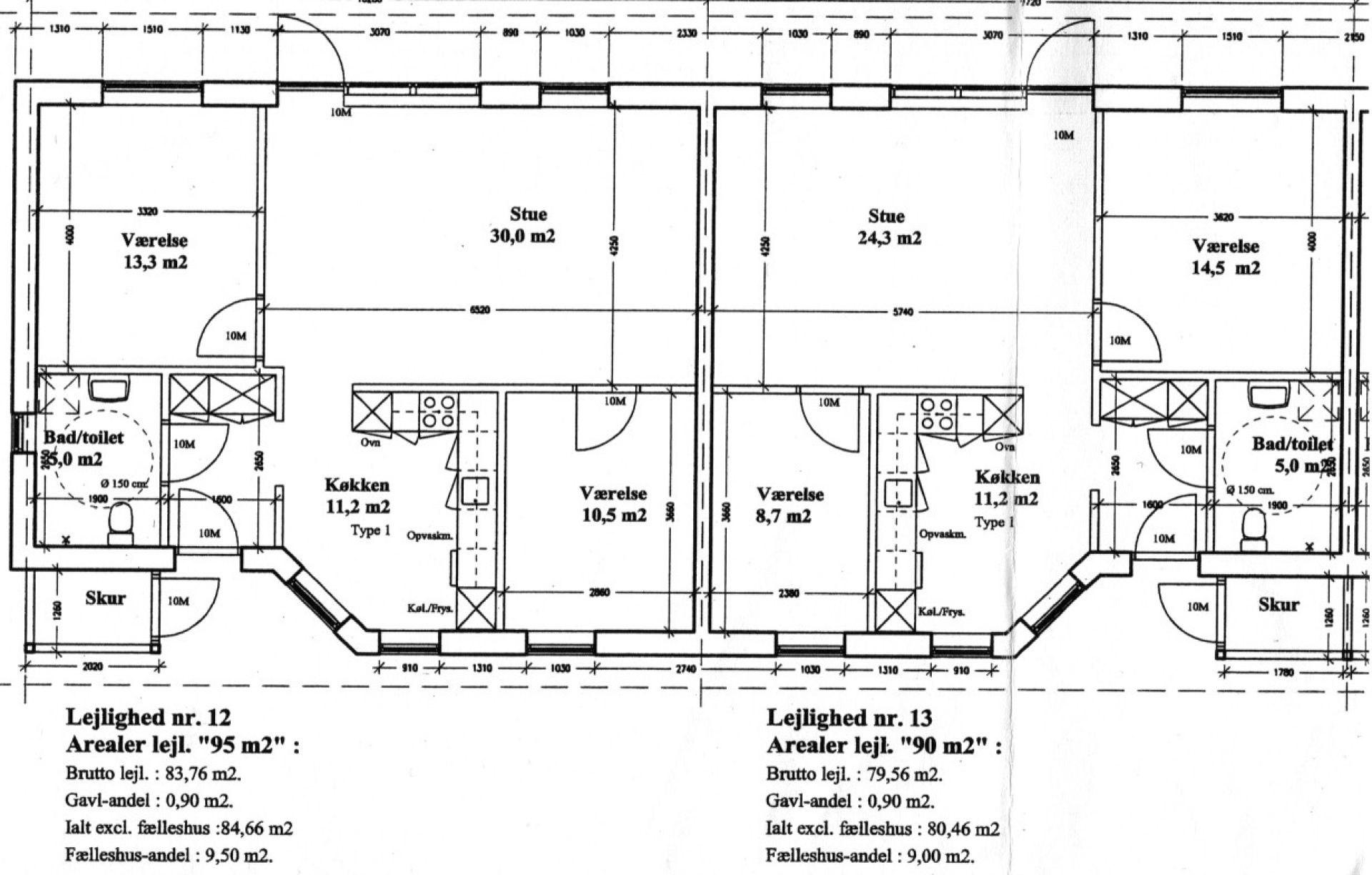
20 boliger opført som rækkehusbebyggelse for seniorer. Alle boliger er handicapvenligt indrettet, har egen have med terrasse m.v. Til boligerne er der fælles grønne arealer samt veldisponeret fælleshus med gæsteværelse. Byggeriet er opført i 2002. Ventelisten administreres af Seniorbofællesskabet.
Adresseoplysninger
3200 Helsinge
Kontaktoplysninger
-
Kontaktperson:Jytte Nielsen
-
Email:
Denne e-mail adresse bliver beskyttet mod spambots. Du skal have JavaScript aktiveret for at vise den. -
Telefon:28341946
Links
Del med dine venner på
Beskrivelse af bofællesskabet
Tænk i god tid på, hvor du vil bo, når du bliver pensionist. Seniorbofællesskabet Humlehaven i Helsinge er et godt bud, - og ventelisten er åben for nye ansøgere.
Kriterier:
- Funktionsdygtig
- Social
- Rummelig
- Flytteparat - 3 måneder efter modtagelse af tilbud om bolig
BESKRIVELSE
20 lejeboliger opført som rækkehusbebyggelse for seniorer. Alle boliger har egen have med terrasse m.v. Til boligerne er der fælles grønne arealer samt veldisponeret fælleshus med gæsteværelse. Byggeriet er opført i 2002. Ventelisten administreres af Seniorbofællesskabet.
Kontaktnavn:
Jytte Nielsen formand for Ventelisteudvalget
Telefonnummer: 28341946
Mail:
Indskud: fra 26.000-36.000 kr.
Historien om bofællesskabet
Fakta om bofællesskabet
Struktur
65
95
Økonomi
Varme
El
Vand
Fælles faciliteter
-
Fælleshus
Gæsteværelse(r)
Handicapvenlig
Græsarealer
Rekreative områder
Værksted(er)
Private faciliteter
Fællesspisning
-
Frekvens
-
Pris pr. måltid (voksen)
-
Pris pr. måltid (barn)
-
Økologi
